本町リバーサイドビル 大阪の賃貸事務所(貸店舗)の物件詳細・概要・間取図・日々更新/不動産情報を提供する【ゴナ】

物件詳細
物件番号 31164 店舗付き事務所

名称 本町リバーサイドビル
所在地 大阪市中央区本町1丁目
最寄駅 大阪メトロ堺筋線 『堺筋本町』 徒歩 3分
大阪メトロ中央線 『堺筋本町』 徒歩 4分
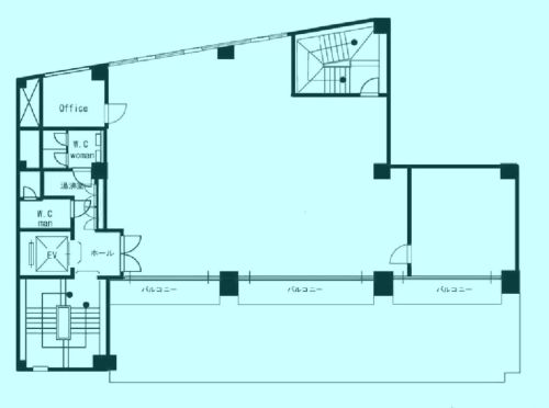
貸室 所在階 6階部分 号室
契約面積 10.25坪 33.88u

賃貸条件 坪単価 総額
賃料  6,500円/坪  66,625円
共益費  488円/坪  5,000円
敷金  0円/坪  0円
礼金  2ヶ月  2ヶ月
賃料・共益費には別途、消費税が必要になります。

構造 SRC造  8階建/地下1階
築年数 1984/11 リニューアル  

設備概要
エレベーター 1 駐車場 立体 
空調設備 個別空調  使用時間 24時間使用可 
セキュリティー 機械警備  フロアー仕様 タイルカーペット 
光ケーブル 有   CATV -  
備 考 堺筋本町エリアで・・・
諸条件を見直しての再募集です。

まだまだ?
諸条件交渉可?です。 

お問合せリストに追加 このページを印刷する

■取引態様:仲介
■契約が成立した場合仲介手数料として賃料の1ヶ月分を
 申し受けます 
■広告作成中に契約済みの場合はご容赦下さい。
■図面等現況が相違する場合は現況優先にてご容赦下さい。
■すべてのコンテンツ及び画像など無断転載を禁止致します。

沿線   所在地
【御堂筋線】 新大阪 -  西中島南方 -  中津 - 梅田 - 淀屋橋 - 本町 - 心斎橋 - なんば - 大国町   大阪市中央区
【四ツ橋線】 西梅田 - 肥後橋 - 本町 - 四ツ橋 - なんば - 大国町    大阪市中央区の町名マップ
【堺筋線】 天神橋筋六丁目 - 扇町 - 南森町 - 北浜 - 堺筋本町 - 長堀橋 - 日本橋 - 恵美須町 -  動物園前     大阪市北区
【中央線】 阿波座 - 本町 - 堺筋本町 - 谷町四丁目 - 森ノ宮    大阪市西区
【谷町線】 天神橋筋六丁目 -  中崎町 - 東梅田 - 南森町 - 天満橋 - 谷町四丁目 - 谷町六丁目 - 谷町九丁目 - 四天王寺前夕陽ヶ丘 - 天王寺     大阪市浪速区
【千日前線】 野田阪神 -  玉川 -  阿波座 - 西長堀 - 桜川 - なんば - 日本橋 - 谷町九丁目 - 鶴橋   大阪市天王寺区
      大阪市福島区
      大阪市淀川区